Arbeiten und Wohnen unter einem Dach mit viel Platz und Potenzial
-
Dieses vielseitige Wohn- und Geschäftshaus vereint Wohnen, Arbeiten und Lagern auf ideale Weise. Perfekt für Handwerksbetriebe, die kurze Wege und effiziente Abläufe schätzen. Auf rund 402 m² Gesamtfläche bietet das Objekt eine hochwertig ausgestattete Wohneinheit, eine gepflegte Bürofläche sowie großzügige Lager- und Abstellmöglichkeiten in den Nebengebäuden.
Das etwa 591 m² große Grundstück umfasst einen geschützten Innenhof mit überdachter Terrasse, mehrere Pkw-Stellplätze und einen weitläufigen Garten. Der Zugang erfolgt über ein rund 3,20 m hohes Hoftor, das auch für größere Transportfahrzeuge geeignet ist. Der Innenhof eignet sich nicht nur als Stellfläche, sondern bietet auch zusätzliche Nutzungsmöglichkeiten, beispielsweise als Werkstatt, Lager oder überdachter Arbeitsbereich.
Im Hochparterre befindet sich eine abgeschlossene Büroeinheit mit drei Räumen, Empfangstheke, Gäste-WC und Küche. Ideal für Kundenempfang, Verwaltung oder Planung. Die angrenzenden Lagerflächen im hinteren Bereich und in den Nebengebäuden ermöglichen eine klare funktionale Trennung zwischen Büro und Werkstatt.
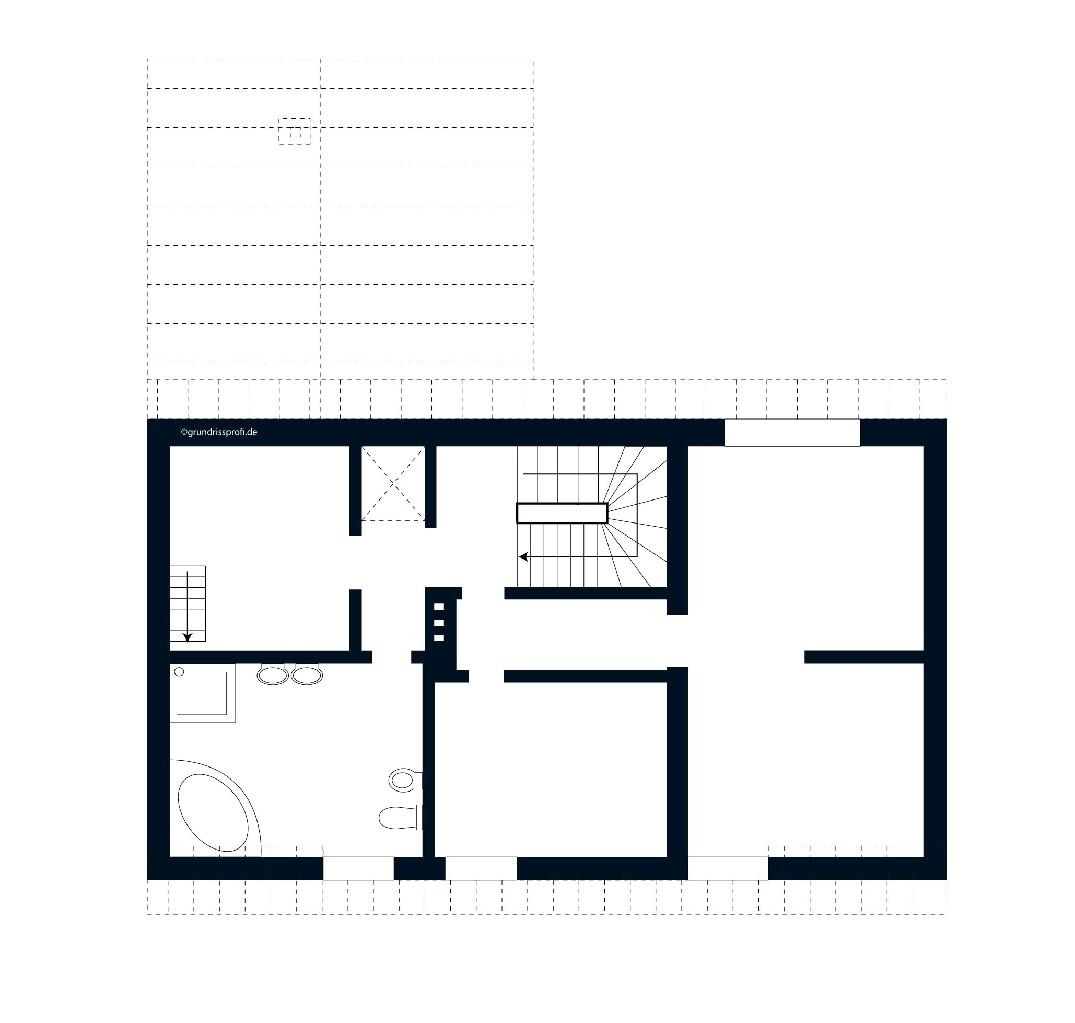
Der private Wohnbereich ist über einen separaten Eingang zugänglich und erstreckt sich über das Ober- und Dachgeschoss. Zur hochwertigen Ausstattung gehören eine moderne Einbauküche mit Markengeräten, ein großzügiger Wohn- und Essbereich, ein Tageslichtbad mit Regendusche und Eckbadewanne sowie mehrere Schlaf- und Arbeitszimmer. Ein ausgebauter Spitzboden und ein begehbarer Kleiderschrank ergänzen das Angebot.
Die Immobilie ist voll unterkellert, verfügt über eine Ölzentralheizung sowie doppelt verglaste Kunststofffenster. Ein attraktives Gesamtpaket für Unternehmer, die Wohnen und Arbeiten intelligent kombinieren möchten.
Darüber hinaus bietet das Objekt Ausbau- und Erweiterungspotenzial für individuelle Ideen. -
Flächen
- Wohnfläche: 139 m²
- Grundstücksfläche: 590 m²
- Nutzfläche: 402 m²
- Wohneinheiten: 1
- Zimmer insgesamt: 7
- Etagen: 3
- Stellplätze: 5
- Stellplatzart: Garage, Freiplatz
- Außenstellplätze: 3
- Garagenstellplätze: 2
Zustand & Erschließung
- Baujahr: 1920
- Zustand: modernisiert
- Keller: voll unterkellert
Sonstiges
Der Energieausweis liegt zur Besichtigung vor.
Energieausweis: Verbrauchsausweis gültig von: 16.10.2023
Endenergieverbrauch Wärme: 294 kWh/(m²a) Wesentliche Energieträger Heizung: Befeuerung Oel
Energieeffizienzklasse: H (hohe Fördermöglichkeit bei Erneuerung) Baujahr: 1920- Immobilie ist verfügbar ab: nach Vereinbaruntg
-
– Freistehendes Wohn- und Geschäftshaus mit Wohneinheit im OG und DG, Büro- und Lagerfläche für eine Betriebsstätte im EG
– Vinylboden in Holzoptik im OG und DG
– Hochwertige offene Einbauküche mit Kücheninsel und Essbereich
– Innenhof mit bis zu 3 Außenstellplätzen und 2 Garagen
– Vor dem Haus weitere 4 Außenstellplätze
– Ölzentralheizung mit Öltank
– Modernisierte Bürofläche auf ca. 60 m² mit Teeküche
– Separates Mitarbeiter-WC
– Lagerflächen vom Hof aus zu erreichen
– Überdachte Terrasse im Innenhof
– Unterkellert
– Gäste-WC
– Ausgebautes Dachgeschoss- Art der Ausstattung: gehoben
- Heizungsart: Zentralheizung
- Befeuerung: Öl
- Badausstattung: Badewanne
-
- Energieausweis-Art: Verbrauch
- Energieausweis gültig bis: 10.03.2035
- Energieverbrauchskennwert: 294 kWh/(m²*a)
- Energieeffizienzklasse: H
- Baujahr (Energieausweis): 1920
- Energieausweis-Jahrgang: ab Mai 2014
- Energieausweis-Gebäudeart: Nichtwohngebäude
- Primärenergieträger: Öl
-
Duisdorf, ein Stadtteil im Westen Bonns mit rund 15.000 Einwohnern, grenzt im Norden an Dransdorf, im Osten an Endenich und im Süden an Hardtberg.
Das nahegelegene Kottenforst-Waldgebiet bietet vielseitige Möglichkeiten für sportliche Aktivitäten und Naherholung.
Vom Standort aus sind verschiedene Einkaufsmöglichkeiten, Restaurants und der öffentliche Nahverkehr fußläufig erreichbar. Duisdorf verfügt über eine ausgezeichnete Infrastruktur mit Ärzten, Apotheken und Schulen.
Über die Bundesstraße B56 ist die Bonner Innenstadt (ca. 6 km) sowie das nahegelegene Alfter (ca. 3 km) in wenigen Minuten erreichbar. Eine direkte Anbindung an den ÖPNV, darunter eine S-Bahn-Linie nach Bonn und Euskirchen, gewährleistet eine schnelle Verbindung in die Umgebung.
Der Stadtteil liegt zudem in günstiger Entfernung zum Flughafen Köln/Bonn (ca. 25 km) und dem ICE-Bahnhof Bonn (ca. 6 km).
-
- Kaufpreis: 780.000 €
- Käuferprovision: 3.57 %
Grundrisse

























