Attraktives Mehrfamilienhaus mit Abgeschlossenheitsbescheinigung in Toplage
-
Das gepflegte Mehrfamilienhaus wurde im Jahr 1958 errichtet und befindet sich in einer beliebten, gut angebundenen Wohnlage von Hennef, direkt an der Sieg. Mit einer Gesamtwohnfläche von ca. 445 m², verteilt auf sechs großzügige 3- bis 4-Zimmer-Wohnungen, überzeugt die Immobilie durch ihre attraktive Lage, eine stabile Mieterstruktur und verlässliche Einnahmen. Damit bietet das Objekt eine interessante Investitionsmöglichkeit für Kapitalanleger und Projektentwickler gleichermaßen.
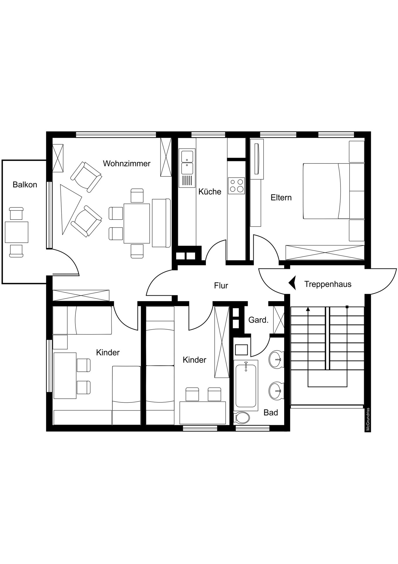
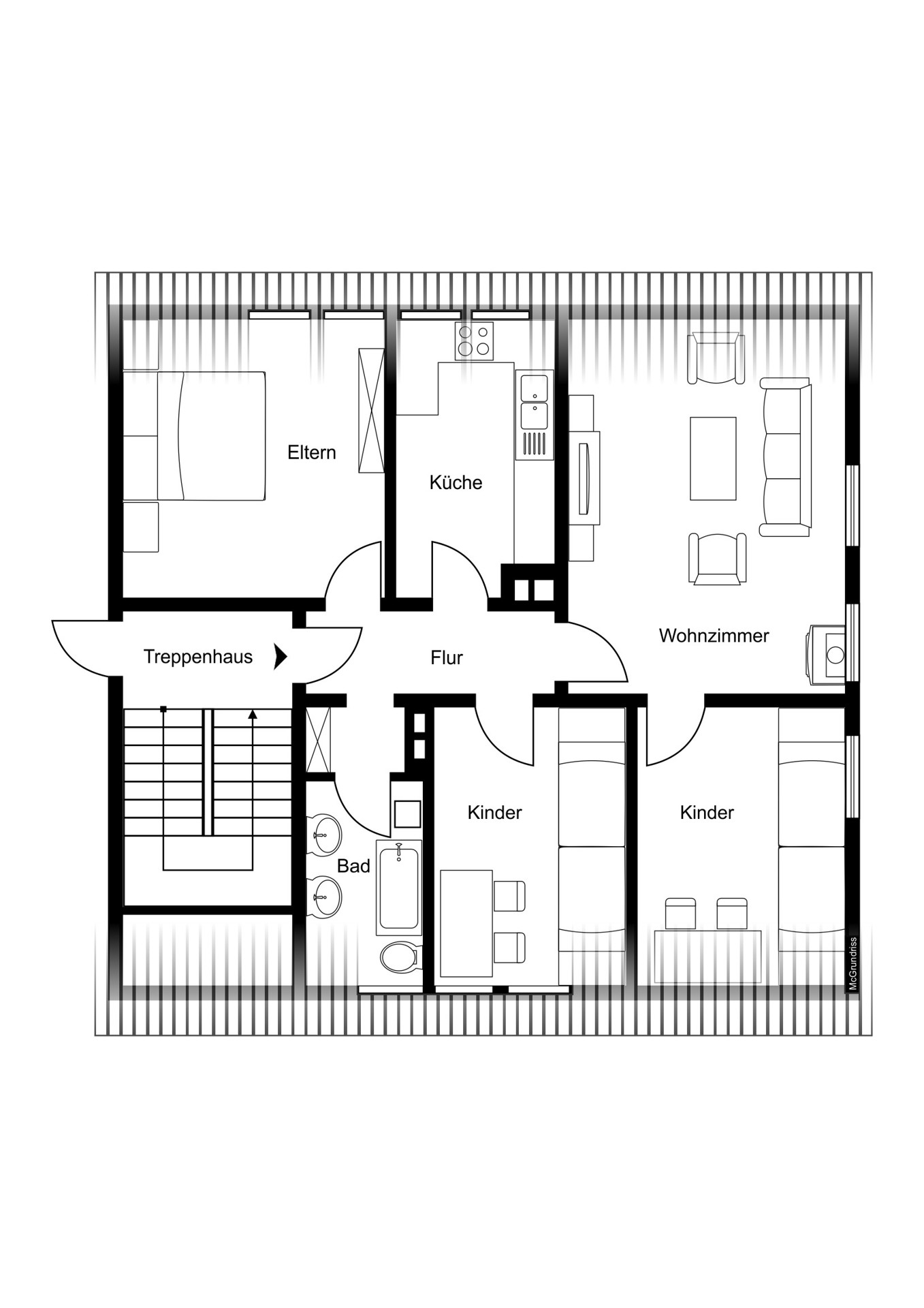
Die Wohnungen verfügen über Wohnflächen zwischen ca. 63 m² und ca. 83 m². Die derzeitigen Mieteinnahmen liegen auf einem stabilen Niveau und bieten gleichzeitig Potenzial für zukünftige Wertsteigerungen durch Mietanpassungen. Aktuell beträgt die durchschnittliche Kaltmiete ca. 10,30 € pro Quadratmeter.
Vermietungsübersicht im Einzelnen:
Wohnung 1: 3 Zimmer, ca. 70,79 m² – seit 2004 vermietet, monatliche Kaltmiete 617,79 € (≈ 8,73 €/m²)
Wohnung 2: 4 Zimmer, ca. 82,92 m² – seit 2023 vermietet, Kaltmiete 854,16 € (≈ 10,30 €/m²)
Wohnung 3: 3 Zimmer, ca. 70,79 m² – seit 2021 vermietet, Kaltmiete 828,07 € (≈ 11,70 €/m²)
Wohnung 4: 4 Zimmer, ca. 82,92 m² – seit 2020 vermietet, Kaltmiete 877,66 € (≈ 10,58 €/m²)
Wohnung 5: 3 Zimmer, ca. 63,31 m² – seit 2001 vermietet, Kaltmiete 533,49 € (≈ 8,43 €/m²)
Wohnung 6: 4 Zimmer, ca. 74,25 m² – seit 2019 vermietet, Kaltmiete 874,13 € (≈ 11,77 €/m²)
Zusätzlich sind zwei Stellplätze separat für jeweils 75,00 € pro Monat vermietet, was weitere monatliche Einnahmen von 150,00 € generiert.
Insgesamt belaufen sich die monatlichen Kaltmieteinnahmen des Objekts auf 4.735,30 €, zuzüglich der Erlöse aus den Stellplätzen.
Dank der soliden Mietrendite und des Wertsteigerungspotenzials durch zukünftige Mietanpassungen bei Neuvermietungen stellt diese Immobilie eine attraktive Kapitalanlage in bester Lage von Hennef dar. -
Flächen
- Wohnfläche: 445 m²
- Grundstücksfläche: 729 m²
- Vermietbare Fläche: 445 m²
- Wohneinheiten: 6
- Etagen: 3
- Stellplätze: 5
- Außenstellplätze: 2
- Garagenstellplätze: 3
Zustand & Erschließung
- Baujahr: 1957
- Zustand: gepflegt
- Keller: voll unterkellert
Sonstiges
- Immobilie ist verfügbar ab: nach Vereinbarung
-
– Wohnung (Mitte links) wurde komplett saniert
– Gemeinschaftliche Waschküche
– Gartenmitbenutzung für Erdgeschosswohnungen
– Drei Garagen aus 2004
– Moderne Heizungsanlage
- Art der Ausstattung: Standard
- Befeuerung: Gas
-
- Energieausweis-Art: Bedarf
- Energieausweis gültig bis: 17.11.2030
- Endenergiebedarf: 128,00 kWh/(m²*a)
- Energieeffizienzklasse: D
- Baujahr (Energieausweis): 1957
- Energieausweis-Jahrgang: ab Mai 2014
- Energieausweis-Gebäudeart: Wohngebäude
- Primärenergieträger: Gas
-
Die Immobilie befindet sich in bester Lage von Hennef (Sieg), direkt an der begehrten Siegallee – einer ruhigen und gleichzeitig zentralen Wohnstraße mit viel Grün und direkter Nähe zur Sieg. Die Umgebung ist geprägt von gepflegten Wohnhäusern, altem Baumbestand und einer angenehmen, familienfreundlichen Atmosphäre.
Das Zentrum von Hennef ist fußläufig in wenigen Minuten erreichbar. Hier finden sich vielfältige Einkaufsmöglichkeiten, Cafés, Restaurants, Ärzte, Apotheken sowie kulturelle und sportliche Angebote. Schulen und Kindergärten befinden sich ebenfalls in komfortabler Nähe.
Die Anbindung an den öffentlichen Nahverkehr ist exzellent: Der Bahnhof Hennef (Sieg) liegt nur wenige Gehminuten entfernt und bietet regelmäßige Zugverbindungen nach Bonn, Siegburg und Köln. Auch die Autobahnen A3 und A560 sind schnell erreichbar und ermöglichen eine zügige Anbindung an die umliegenden Städte und den Flughafen Köln/Bonn.
Besonders hervorzuheben ist die direkte Nähe zur Sieg und zu den umliegenden Grünflächen, die zu ausgedehnten Spaziergängen, Joggingrunden oder Fahrradtouren einladen – ein idealer Standort für Menschen, die urbanes Leben und naturnahe Erholung verbinden möchten.
-
- Kaufpreis: 1.150.000 €
- Käuferprovision: 4,76 % inkl. MwSt
- X-fache (Kaufpreis bez. auf Jahresmiete): 19.70
- Aktuelle Mieteinnahmen pro Jahr: 58.371,60 €
Grundrisse

























