Ideal für Ihr Business!
-
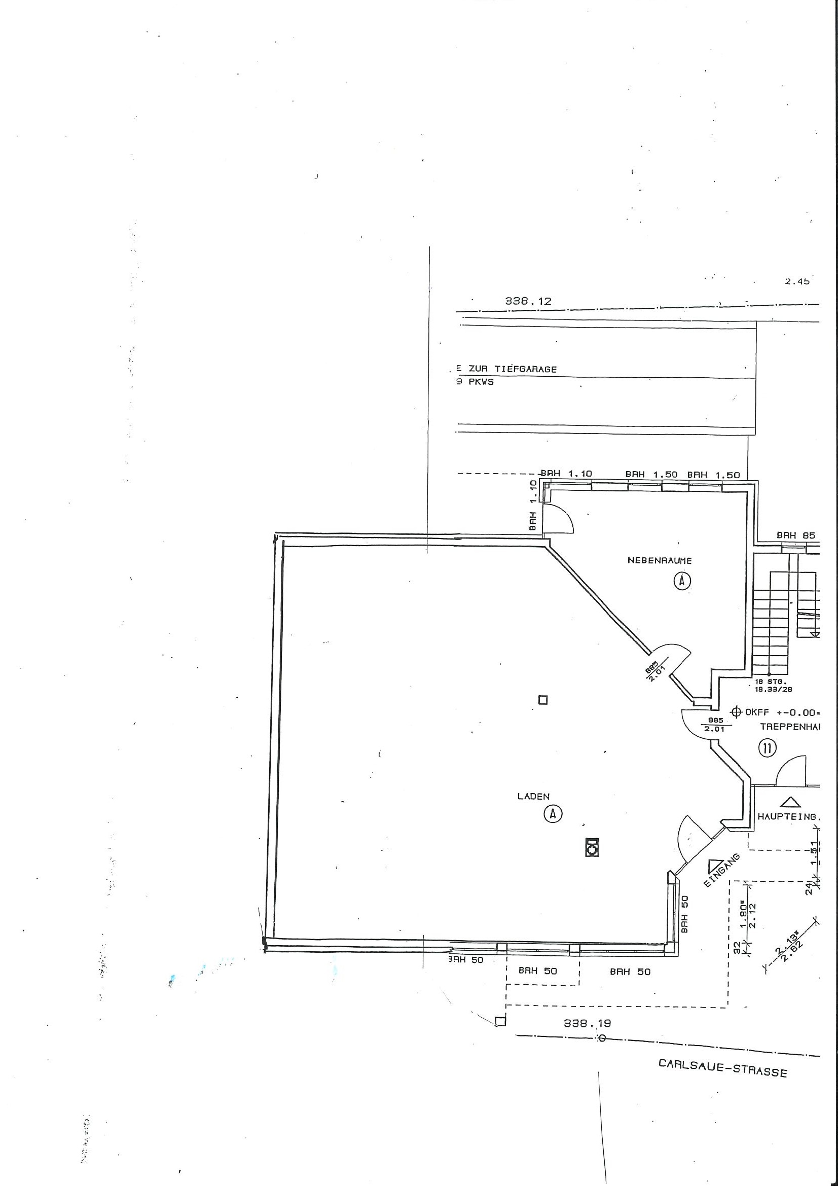
Ansprechendes Ladenlokal oder Büro-/Praxisfläche, in einem attraktiven Wohn-/Geschäftshaus. Eine gastronomische Nutzung ist ebenfalls denkbar. Im Erdgeschoss befinden sich 2 Gewerbeeinheiten, wovon diese angebotene Gewerbefläche neu vermietet wird. Zurzeit wird die Einheit als Sonnenstudio genutzt und könnte aufgrund der vorhandenen Kabinen, sofort als solches weiter betrieben werden. Eine Klimaanlage sorgt für angenehmes Raumklima. In der stark frequentierten Lage wird man 1-A wahrgenommen. 3 Kfz.-Außenstellplätze gehören zur Mieteinheit. Die Fläche steht kurzfristig zur Nutzung frei.
-
Flächen
- Nutzfläche: 123 m²
- Verkaufsfläche: 123 m²
- Gesamtfläche: 123 m²
- Stellplatzart: Garage, Freiplatz
- Außenstellplätze: 1
- Garagenstellplätze: 1
Zustand & Erschließung
- Baujahr: 1994
- Zustand: gepflegt
Sonstiges
- Immobilie ist verfügbar ab: sofort
-
1 großer Gewerberaum mit Nebenraum, frei einteilbar. 2 Toiletten und Küchenzeile. Klimaanlage.
- Art der Ausstattung: Standard
- Heizungsart: Zentralheizung
- Befeuerung: Öl
-
- Energieausweis-Art: Bedarf
- Energieausweis gültig bis: 25.09.2029
- Endenergiebedarf: 102 kWh/(m²*a)
- Energieeffizienzklasse: D
- Baujahr (Energieausweis): 1994
- Energieausweis-Ausstellungsdatum: 26.09.2019
- Energieausweis-Jahrgang: ab Mai 2014
- Energieausweis-Gebäudeart: Nichtwohngebäude
- Primärenergieträger: Öl
-
In attraktiver Geschäftslage, an einer stark frequentierten Ausfallstraße von Olsberg, befindet sich dieses ansprechende Ladenlokal – Büro-/Praxisfläche oder Gastronomieobjekt.
-
- Kaltmiete: 1.230 €
- Mieterprovision: 1.19 Monatsmieten
Grundrisse