In der Nähe zur A1- Hagen-Nord - Modern ausgestatte Bürofläche mit 623 m² Lager-/Produktionshalle
-
Diese attraktive Gewerbeeinheit verbindet moderne Büroflächen mit einer vielseitig nutzbaren Produktions- und Lagerhalle und bietet auf insgesamt ca. 914 m² die perfekte Basis für Ihren Unternehmenserfolg. Der Standort überzeugt durch seine verkehrsgünstige Lage im Hagener Norden, nur wenige Minuten von der A1 entfernt ideal für Kunden, Mitarbeiter und Logistik.
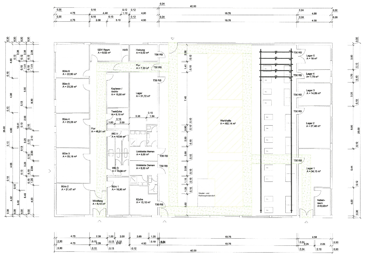
Die Gewerbeeinheit setzt sich aus einem ca. 260 m² großen modernen Bürotrakt sowie einer direkt angeschlossenen Produktions-/ und Lagerhalle mit ca. 654 m² zusammen und bietet damit ideale Voraussetzungen für Unternehmen, die Büro-/ und Hallenflächen kombinieren möchten.
Bei dem vorgelagerten Bürogebäude handelt es sich um ein eingeschossiges massiv errichtetes, nicht unterkellertes Gebäude, welches über eine Schleuse mit der dahinterliegenden Halle verbunden ist.
Der Bürokomplex befindet sich in einem modernen und umfangreich renovierten Zustand. Sowohl die Elektrik-/ als auch die EDV- Verkabelung sowie der Innenausbau mit einem durchgehenden hellgrauen Fliesenboden, weißen Türelementen sowie einer weißen Rasterdecke mit LED- Beleuchtung entsprechen den Anforderungen an einen modernen Firmenstandort.
Über den separaten Zugang ist der Bürotrakt erreichbar. Hier betreten Sie zuerst einen Windfang mit Übergang in den zentralen Flur. Vom Flur links und rechts gelegen befinden sich jeweils auf der Fensterseite insgesamt 6 Büros. Auf der innenliegenden Flurseite liegen die modern gefliesten getrennten WC- Anlagen, ein ca. 15.5 m² großer Lagerraum sowie der bereits mit einer modernen Einbauküche ausgestattete Pausenraum.
Über eine Schleuse ist der Bürotrakt direkt mit der ca. 654 m² großen Halle verbunden. Diese teilt sich in eine rund 452 m² große Werkshalle, sieben angrenzende Lagerräume, getrennte Umkleideräume mit Duschen sowie einen weiteren Pausenraum mit moderner Einbauküche auf. Zwei Zufahrten gewährleisten eine flexible Nutzung: Ein elektrisch steuerbares Sektionaltor sowie ein zusätzliches, doppelflügeliges Tor mit Zugang zu einer ca. 43 m² großen Lagerfläche. Eine Krananlage mit fünf verschiebbaren Trägern, jeweils mit einer Hebe-/Traglast von 250 kg, ergänzt die Ausstattung der Halle.
Das ca. 2.274 m² große Grundstück bietet bis zu zwölf PKW-Stellplätze sowie eine Garage. Ein gepflasterter Außenbereich unter einem großen Baum eignet sich ideal für Pausen im Freien.
Eine Immobilie, die Funktionalität, Komfort und Standortvorteile perfekt vereint und damit eine zukunftssichere Grundlage für Ihr Unternehmen bietet. -
Flächen
- Grundstücksfläche: 2.274 m²
- Nutzfläche: 914 m²
- Lagerfläche: 623 m²
- Bürofläche: 240 m²
- Sonstige Fläche: 35 m²
- Gesamtfläche: 914 m²
- Badezimmer: 4
- Etagen: 1
- Etage: 1
- Stellplatzart: Garage, Freiplatz
- Außenstellplätze: 12
- Garagenstellplätze: 1
Zustand & Erschließung
- Baujahr: 1979
- Zustand: gepflegt
- Letzte Modernisierung: 2023
Sonstiges
Der Energieausweis wird den Interessenten bei der Besichtigung vorgelegt und in Kopie übergeben:
Energieausweis: Verbrauchsausweis gültig von: 03.09.2025
Endenergieverbrauch Wärme: 133 kWh/(m²a) Endenergieverbrauch Strom: 8 kWh/(m²a) Baujahr Gebäude: 1979
Baujahr Heizung: 2023- Immobilie ist verfügbar ab: sofort
-
Allgemein
Elektroinstallation: Getrennte moderne Elektroinstallation für Bürogebäude und Lagerhalle, Starkstromanschlüsse in der Lagerhalle vorhanden
Heizung und
Warmwasser: Moderne Gasbrennwertheizungen Hersteller Vaillant, Baujahr 2023, Bürokomplex mit Wand-Radiatoren, Werkshalle mit Deckenstrahlern mit Direktbefeuerung, Nebenflächen im Lager ebenfalls mit Wandradiatoren
Warmwasser: Dezentral in den jeweiligen Sanitärräumen, Umkleiden und Teeküchen über moderne Durchlauferhitzer
Sonstiges: Brandmeldeanlage, Alarmanlage sowie Videoüberwachung, Zwei vollausgestattete moderne Einbauküchen im Büro-/ bzw. Hallentrakt (Kauf der Einbauküchen optional vom Vormieter möglich)Bürokomplex
Größe: Ca. 260 m² aufgeteilt 6 Büros, getrennte WC-Anlagen, Küche, EDV und Nebenflächen wie Lagerräume, Heizung, Flure
Bauweise: Massiv
Dach: Flachdach, gedämmt.
Fenster: Doppelverglaste Aluminiumfenster
Eingang: Separater Zugang zum Bürotrakt mit vorgelagertem Windfang, Eingangstür Aluminium mit Glaseinsatz
Bodenbeläge: Durchgehend modern gefliest mit grauen Fliesen, Zwischentrakt (Schleuse) zur Halle baujahresentsprechend gefliest
Wände: Raufaser tapeziert, weiß gestrichen
Decken: Abgehängt mit Rasterdecken mit weißen Mineralfaserplatten
Beleuchtung: LED- Rastereinbauleuchten
Innentüren/Zargen: Holz, weiß, zwischen Büro und Lager 2 hellgraue Brandschutztüren mit Stahlzargen
Sanitärbereiche: Innenliegend, getrennte WC- Anlage für Damen und Herren, modern gefliest und mit weißen Sanitärobjekten ausgestattet
Elektro-/EDV-Installation: Vollständig modernisierte Verteilung über Brüstungskabelkanäle, EDV- /Netzwerk (Cat7-Verkabelung)-/ TelefonkabelverbindungenLagerhalle
Größe: Insgesamt ca. 654 m², aufgeteilt auf eine ca. 482 m² große Werkshalle sowie 7 Lageräume, getrennte Umkleideräume und Küche
Bauweise: Skelettbauweise
Dach: Flachdach gedämmt, Stahlträgern, Unterseite Trapezbleche, vier Lichtkuppeln mit Elektromotoren
Wände: Gemauert oder Fertigbetonelemente
Fenster: Große Flächenlichtbänder mit integrierten Kippfenstern
Bodenbelag: Beschichteter Estrich
Hallenzufahrten: Ca. 3 m x 3,5 m großes Sektionaltor, sowie ein ca. 2,25 m x 3,5 m doppelflügeliges Klapptor
Außenzugang: Die Halle verfügt einen separaten Türzugang
Innentüren/ Zargen: Stahltüren und Stahlzargen
Sanitärbereiche: Getrennte Umkleideräume mit Vorraum WCs und Duschmöglichkeit
Beleuchtung: Halle Leichtstoffröhren, Umkleide und Küche abgehängte Rasterdecke mit LED- Rasterdeckenleuchten
Sonstiges: In der Halle befindet sich ein Kransystem mit 5 verschiebbaren Trägern, jeweils mit einer Hebe-/Traglast von 250 kg (Kauf optional vom Vormieter möglich)- Art der Ausstattung: Standard
- Heizungsart: Zentralheizung
- Befeuerung: Gas
- Bodenbelag: Fliesen
-
- Energieausweis-Art: Verbrauch
- Energieausweis gültig bis: 02.09.2035
- Stromverbrauchskennwert: 8 kWh/(m²*a)
- Heizenergieverbrauchskennwert: 133 kWh/(m²*a)
- Baujahr (Energieausweis): 1979
- Energieausweis-Jahrgang: ab Mai 2014
- Energieausweis-Gebäudeart: Nichtwohngebäude
- Primärenergieträger: Gas
-
Hagen- Bathey ist ein Ortsteil im Stadtbezirk Hagen-Nord.
Bathey liegt auf der Mittelterrasse der Ruhr südlich des Hengsteysees, der nördlich an das Stadtgebiet von Dortmund grenzt. Im Westen liegt der Ortsteil Hengstey, südlich die Autobahn 1 und der Ortsteil Kabel, östlich grenzt die Lenne und der Stadtteil Garenfeld. Durch Bathey führt die Bahnstrecke HagenHamm mit dem Abzweig der Ruhr-Sieg-Strecke.
Bathey ist überwiegend geprägt durch Industrie, Gewerbe, Verwaltung und Verbrauchermärkte. Der Stadtteil zeichnet sich durch eine ideale infrastrukturelle Anbindung aus: Die Autobahn A1 ist nur ca. 800 m, die A46 Richtung Märkischen Kreis ca. 8 km sowie A45 Richtung Lüdenscheid oder Dortmund nur ca. 12 km entfernt.
-
- Kaltmiete: 6.300 €
- monatl. Betriebs-/Nebenkosten: 650 €
- Kaution: 12.600 €
- Preise zuzüglich Mehrwertsteuer: ja








































