Mehrfamilienhaus in sehr guter Lage – Abgeschlossenheitsbescheinigung vorhanden
-
Das Mehrfamilienhaus aus dem Baujahr 1958 präsentiert sich in einem gepflegten Gesamtzustand und liegt in einer gefragten, sehr gut angebundenen Wohnlage von Hennef in unmittelbarer Nähe zur Sieg. Die Immobilie verfügt über eine Gesamtwohnfläche von rund 445 m², die sich auf insgesamt sechs großzügig geschnittene Wohnungen mit jeweils drei bis vier Zimmern verteilen. Die Kombination aus attraktiver Lage, langfristig gewachsener Mieterstruktur und verlässlichen Einnahmen macht das Objekt sowohl für klassische Kapitalanleger als auch für Projektentwickler interessant.
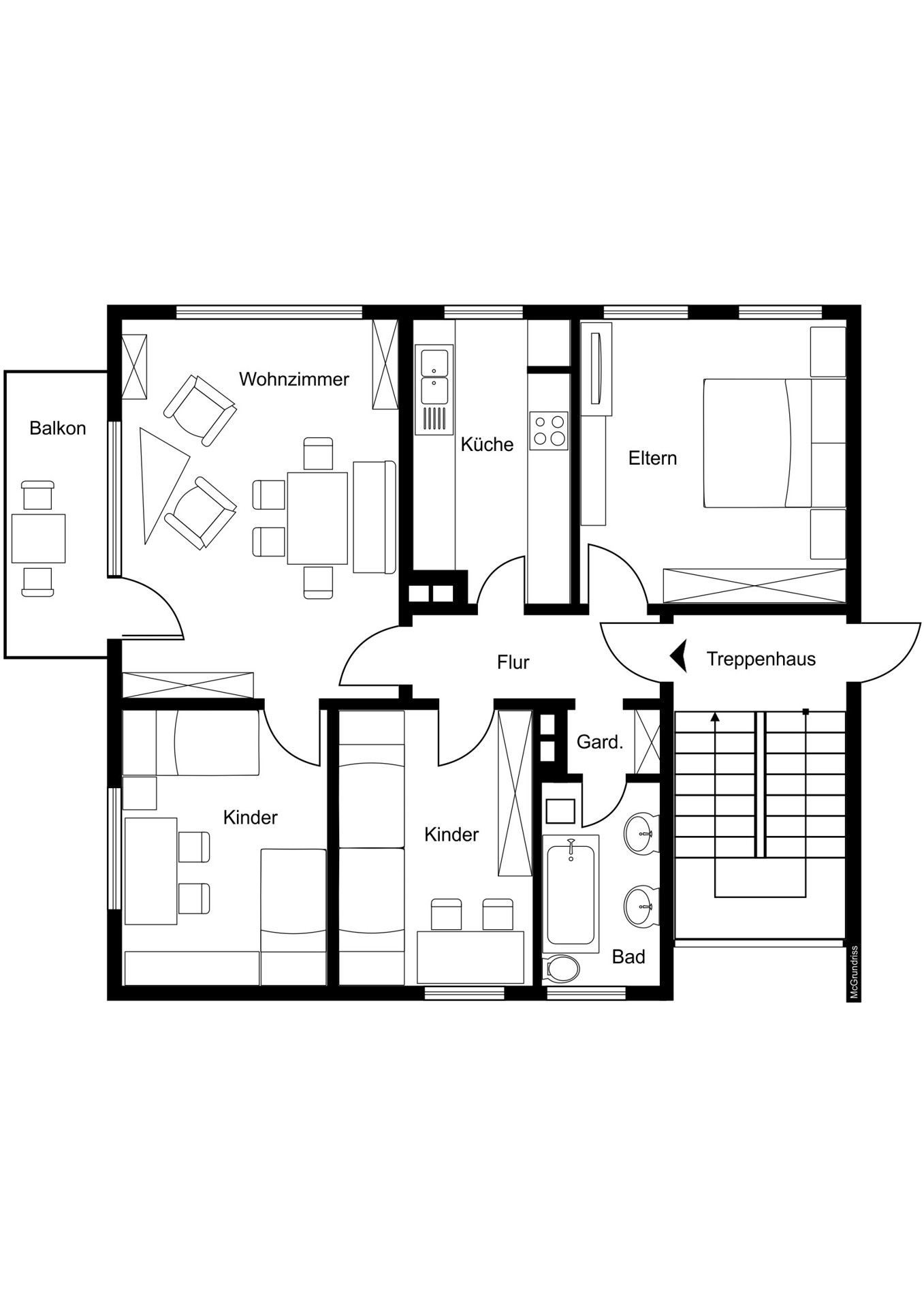
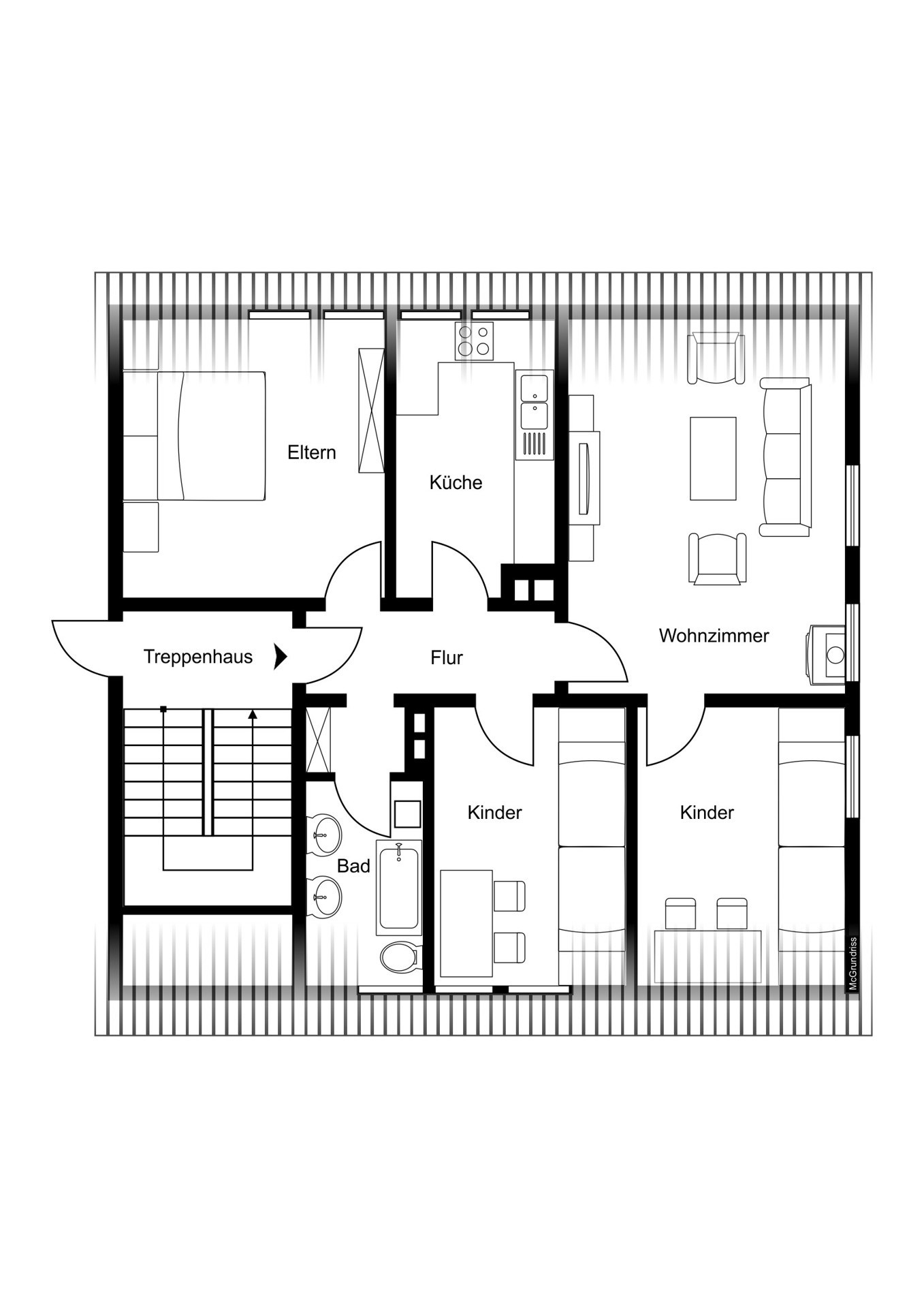
Die einzelnen Wohneinheiten weisen Wohnflächen zwischen ca. 63 m² und ca. 83 m² auf. Die aktuellen Mieten bewegen sich auf einem stabilen Niveau und bieten zugleich Spielraum für zukünftige Mietanpassungen. Derzeit liegt die durchschnittliche Nettokaltmiete bei rund 10,30 € pro Quadratmeter.
Wohnung 1: 3 Zimmer, ca. 70,79 m² – vermietet seit 2004, Kaltmiete 617,79 € Wohnung 2: 4 Zimmer, ca. 82,92 m² – vermietet seit 2023, Kaltmiete 854,16 € (ca. 10,30 €/m²) Wohnung 3: 3 Zimmer, ca. 70,79 m² – vermietet seit 2021, Kaltmiete 828,07 € (ca. 11,70 €/m²) Wohnung 4: 4 Zimmer, ca. 82,92 m² – vermietet seit 2020, Kaltmiete 877,66 € (ca. 10,58 €/m²) Wohnung 5: 3 Zimmer, ca. 63,31 m² – vermietet seit 2001, Kaltmiete 533,49 € (ca. 8,43 €/m²) Wohnung 6: 4 Zimmer, ca. 74,25 m² – vermietet seit 2019, Kaltmiete 874,13 € (ca. 11,77 €/m²)
Ergänzend stehen zwei Stellplätze zur Verfügung, die jeweils für 75,00 € monatlich vermietet sind und zusätzliche Einnahmen in Höhe von insgesamt 150,00 € pro Monat generieren.
Die monatlichen Kaltmieteinnahmen des gesamten Objekts belaufen sich aktuell auf 4.735,30 € zuzüglich der Stellplatzmieten. Aufgrund der stabilen Ertragslage sowie des vorhandenen Entwicklungspotenzials durch zukünftige Mietanpassungen stellt diese Immobilie eine nachhaltige und wertstabile Kapitalanlage in guter Lage von Hennef dar. -
Flächen
- Wohnfläche: 445 m²
- Grundstücksfläche: 729 m²
- Vermietbare Fläche: 445 m²
- Wohneinheiten: 6
- Etagen: 3
- Stellplätze: 6
- Außenstellplätze: 3
- Garagenstellplätze: 3
Zustand & Erschließung
- Baujahr: 1957
- Zustand: gepflegt
- Keller: voll unterkellert
Sonstiges
- Immobilie ist verfügbar ab: nach Vereinbarung
- zurzeit vermietet: ja
-
– Eine Wohneinheit (mittig links) wurde komplett saniert.
– Separate gemeinschaftliche Waschküche für die Bewohner.
– Erneuerung der Fenster im gesamten Objekt in den letzten Jahren durchgeführt.
– Drei Garagen, Baujahr 2004.
– Elektrik und Heizungsleitungen wurden in weiten Teilen erneuert.
– Oberste Geschossdecke im Jahr 2022 fachgerecht gedämmt.
Heizungsanlage aus dem Jahr 2005.
- Art der Ausstattung: Standard
- Befeuerung: Gas
-
- Energieausweis-Art: Bedarf
- Energieausweis gültig bis: 17.11.2030
- Endenergiebedarf: 128,00 kWh/(m²*a)
- Energieeffizienzklasse: D
- Baujahr (Energieausweis): 1957
- Energieausweis-Jahrgang: ab Mai 2014
- Energieausweis-Gebäudeart: Wohngebäude
- Primärenergieträger: Gas
-
Die Immobilie befindet sich in bester Lage von Hennef (Sieg), direkt an der begehrten Siegallee – einer ruhigen und gleichzeitig zentralen Wohnstraße mit viel Grün und direkter Nähe zur Sieg. Die Umgebung ist geprägt von gepflegten Wohnhäusern, altem Baumbestand und einer angenehmen, familienfreundlichen Atmosphäre.
Das Zentrum von Hennef ist fußläufig in wenigen Minuten erreichbar. Hier finden sich vielfältige Einkaufsmöglichkeiten, Cafés, Restaurants, Ärzte, Apotheken sowie kulturelle und sportliche Angebote. Schulen und Kindergärten befinden sich ebenfalls in komfortabler Nähe.
Die Anbindung an den öffentlichen Nahverkehr ist exzellent: Der Bahnhof Hennef (Sieg) liegt nur wenige Gehminuten entfernt und bietet regelmäßige Zugverbindungen nach Bonn, Siegburg und Köln. Auch die Autobahnen A3 und A560 sind schnell erreichbar und ermöglichen eine zügige Anbindung an die umliegenden Städte und den Flughafen Köln/Bonn.
Besonders hervorzuheben ist die direkte Nähe zur Sieg und zu den umliegenden Grünflächen, die zu ausgedehnten Spaziergängen, Joggingrunden oder Fahrradtouren einladen – ein idealer Standort für Menschen, die urbanes Leben und naturnahe Erholung verbinden möchten.
-
- Kaufpreis: 970.000 €
- Käuferprovision: 4,76 % inkl. MwSt
- X-fache (Kaufpreis bez. auf Jahresmiete): 16.62
- Aktuelle Mieteinnahmen pro Jahr: 58.371,60 €
Grundrisse

























