service@schwelme.de
02336-7787
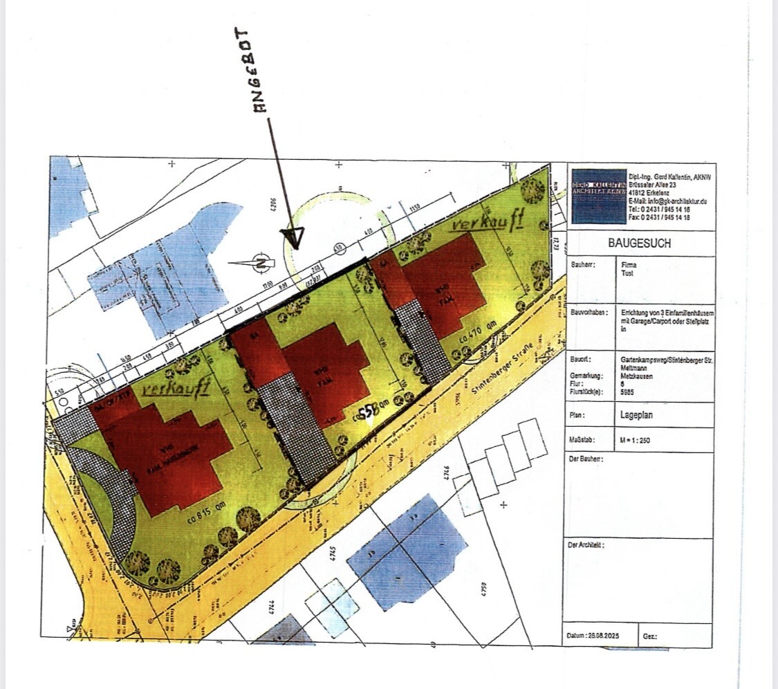
Grundstücksgröße: insgesamt ca. 558 m²
Etagenzahl: 2
Zimmer: 4 bis 6
Die reine Wohnstraße Gartenkampsweg / Stintenbergerstraße befindet sich in verkehrsberuhigter Wohnlage im beliebten Ortsteil Mettmann Metzkausen. Die Nachbarbebauung besteht überwiegend in gewachsener Wohnlage, Bebauung mit Einfamilienhäusern bzw. Eigentumswohnungen in Gebäuden bis zu 2 ½ geschossiger Bauweise. Ebenso hervorzuheben ist die gute Infrastruktur und die Verkehrsanbindung dieser Wohngegend.