Gewerbeimmobilie > Bürohaus
Zu Vermieten

Verkehrsgünstig gelegene, vielseitig nutzbare Bürofläche in Werl

59457 Werl
1.160 €

20054-2761
1996
232 m²
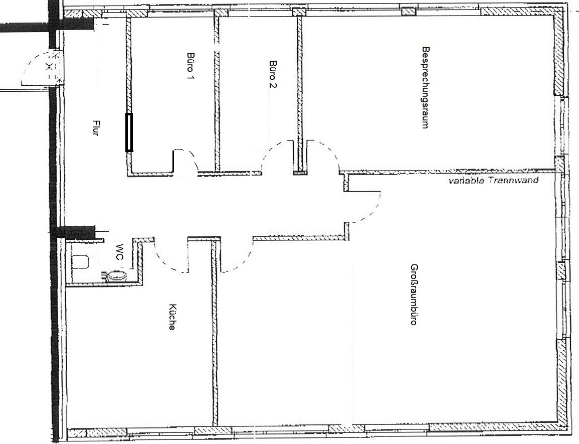
  • Das gepflegte Objekt bietet eine Gesamtfläche von etwa 232 m². Die Fläche kann als Büro, Praxis oder Ausstellungsfläche genutzt werden.
    Die Fläche teilt sich auf in ein Großraumbüro das durch eine variable Trennwand noch ein zusätzliches Büro oder ein Besprechungsraum schaffen kann. Außerdem befindet sich auf der ca. 232 m² großen Fläche ein Pausenraum mit Küche, ein WC, ein Flur und 2 weitere Büros.
  • Flächen

    • Nutzfläche: 410 m²
    • Bürofläche: 232 m²
    • Gesamtfläche: 232 m²

    Zustand & Erschließung

    • Baujahr: 1996
    • Zustand: gepflegt

    Sonstiges

    Wir bitten sich bei Interesse mit einer s c h r i f t l i c h e n Anfrage über unsere Homepage oder das Internetportal an uns zu wenden. Wir senden Ihnen dann umgehend ein Exposé per Email zu. Darin enthalten sind die Anschrift der Immobilie und Innenfotos. Wir bitten Sie, sich anhand dieser Möglichkeit einen ersten Eindruck zu verschaffen. Bei näherem Interesse zeigen wir Ihnen die Immobilie gerne bei einer persönlichen Besichtigung.
    • Immobilie ist verfügbar ab: nach Vereinbarung
    • Befeuerung: Gas
    • Energieausweis-Art: Verbrauch
    • Energieausweis gültig bis: 20.10.2029
    • Stromverbrauchskennwert: 15 kWh/(m²*a)
    • Heizenergieverbrauchskennwert: 76 kWh/(m²*a)
    • Baujahr (Energieausweis): 1996
    • Energieausweis-Jahrgang: ab Mai 2014
    • Energieausweis-Gebäudeart: Nichtwohngebäude
    • Primärenergieträger: Gas
    Energieausweis nicht verfügbar/erforderlich oder in Vorbereitung
    A+
    A
    B
    C
    D
    E
    F
    G
    H
  • Die Räumlichkeiten befinden sich an der viel befahrenen Hammer Straße, die eine der wichtigsten Ausfallstraßen von Werl darstellt. Bis zur Anschlussstelle zur A445 sind es lediglich ca. 1,2 km

    • Kaltmiete: 1.160 €
    • monatl. Betriebs-/Nebenkosten: 350 €
    • Kaution: 2.320 €
    • Preise zuzüglich Mehrwertsteuer: ja
    • Mieterprovision: 2.38 Monatsmieten

Ihre Ansprechpartner

02336-7787
     
Sicher!